Przy skrzyżowaniu ulic Sikorskiego i 28 Czerwca 1956 r. powstanie kamienica wraz z lokalami usługowymi.
W miejscu w którym znajdują się mało estetyczne blaszane budki pojawi się kamienica. Projekt architektoniczny przygotowała pracownia CDF Architekci z Poznania.
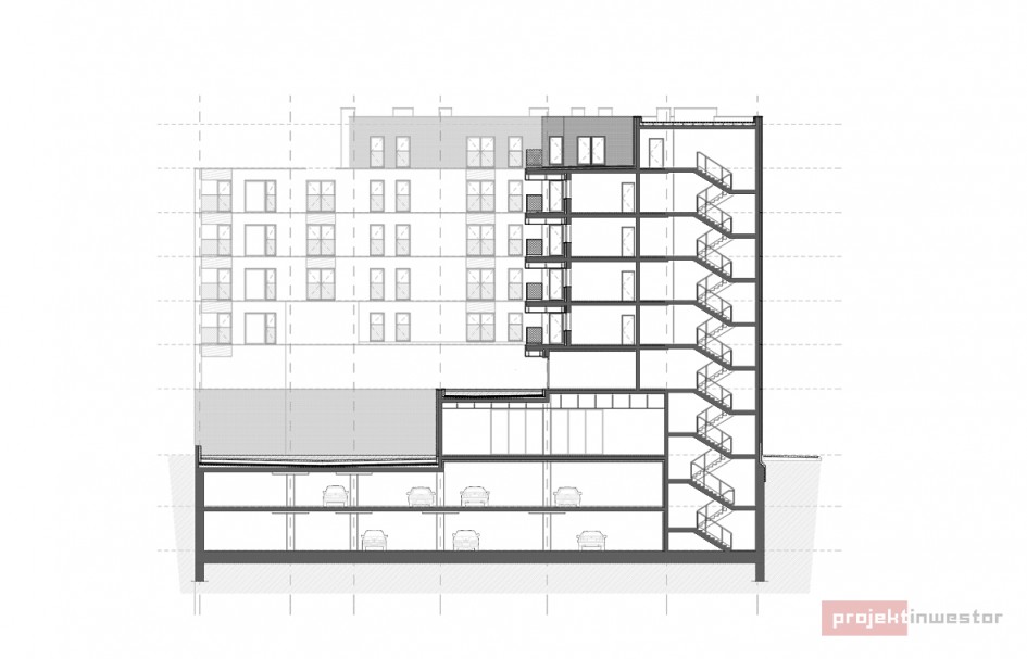
Dziewięciokondygnacyjny budynek (w tym dwie kondygnacje podziemne) zostanie zrealizowany na działce o pow. 1565 mkw. i powstanie w nim ok. 70 mieszkań o łącznej powierzchni 3350 mkw. Dla zmotoryzowanych zaplanowano parking na 78 miejsc, który zajmie cały teren pomiędzy sąsiednimi budynkami.
Reklama
Wykup E-dostęp już teraz i bądź na bieżąco Kup E-dostęp
Aktywujac E-dostęp, masz możliwość w określonym czasie bądź w określonej ilości, czytać materiały publikowane na naszym portalu [oprócz treści PREMIUM].